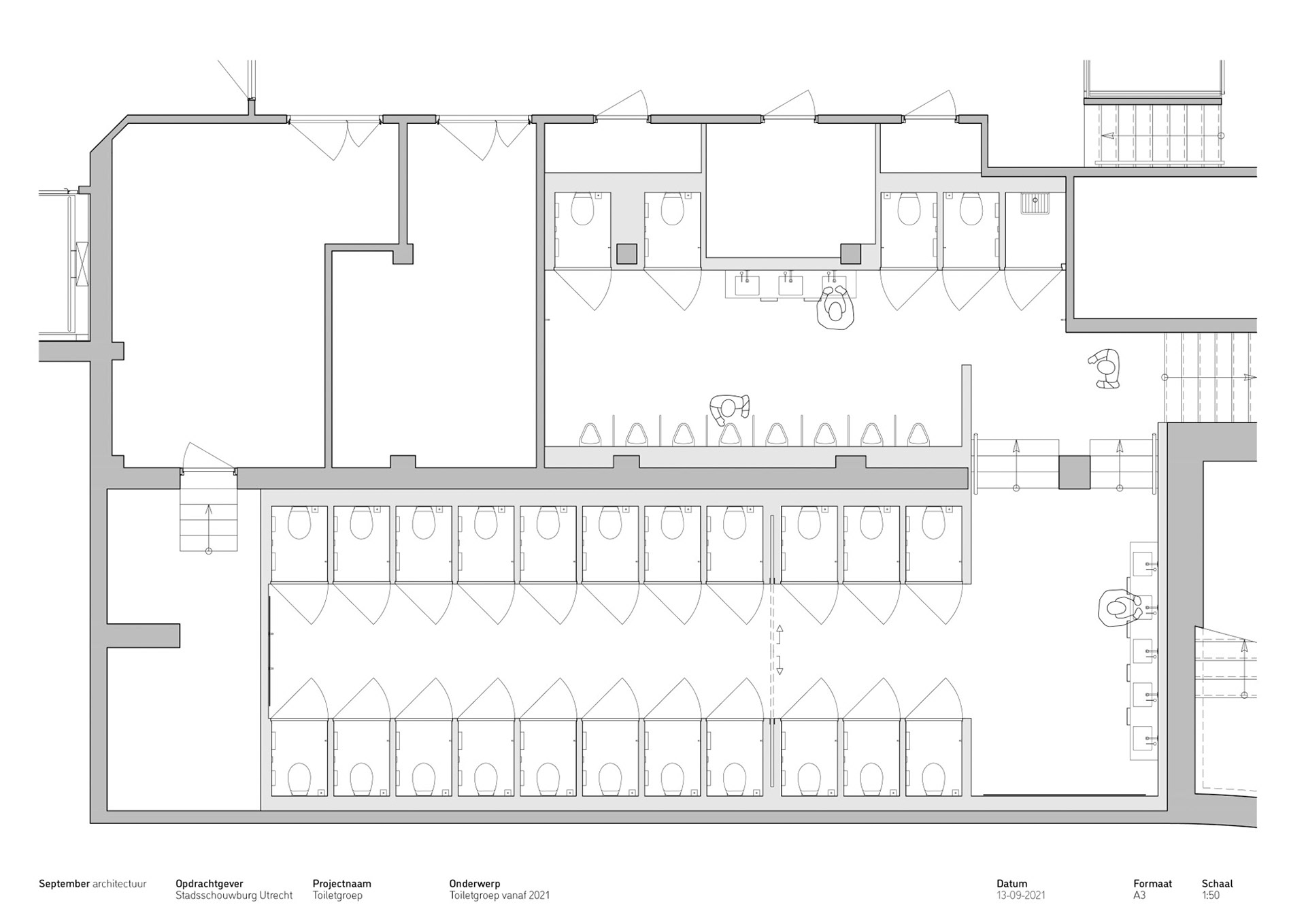
In de Stadsschouwburg van Utrecht, ontworpen door W.M. Dudok in 1937-1941 zijn de publiekstoiletten vervangen en uitgebreid in de niet monumentale kelder van het gebouw. Net zoals het gebouw wordt weerspiegeld in het water van de Singel, wordt in de toiletgroep de ruimte weerspiegeld in het plafond. Hier draait ook het kleurenschema van het gebouw om. In de Stadsschouwburg zijn de wanden wit en vloeren zwart en wit marmer. In de toiletten zijn de wanden zwart en vloeren dezelfde kleur wit als het natuursteen van de monumentale trap er naartoe. Door het spiegelende plafond lijkt de witte vloer een hoog plafond te worden. Een deel van de toiletten is met een schuifdeur afsluitbaar voor momenten dat de grote zaal niet in gebruik is. De verbouwing is uitgevoerd door Jurriens bouw, met advies van ABT, HE adviseurs en Croes Bouwtechnisch Ingenieursbureau